Rédigé par Pierre
15 Fév 2026

Un acquéreur visite un bien à rénover. Il demande combien coûteront les travaux. Personne ne peut lui répondre sans mesures fiables. Il repart, il "réfléchit", le bien reste en portefeuille. Ce n'est pas un problème de motivation. C'est un problème de données. Et c'est exactement ce que nous résolvons.
En une matinée, nous numérisons le bien avec le scanner laser Leica BLK360 G2 et livrons un dossier complet : plans 2D cotés au millimètre, surfaces réelles pièce par pièce, hauteurs sous plafond, position des ouvertures et des réseaux visibles. L'acquéreur transmet ces plans à plusieurs artisans, reçoit des devis comparables, construit un budget réel — prix d'achat plus travaux — et se présente devant sa banque avec un dossier solide. Le passage de la visite à la signature se raccourcit parce que l'incertitude a été remplacée par des chiffres.
Le Leica BLK360 G2 est un scanner laser de qualité topographique : ±4 mm de précision à 10 mètres, 680 000 points capturés par seconde, 900 grammes, scan complet d'une station en moins de 20 secondes. C'est la même technologie que les géomètres-experts et les bureaux d'études BIM — mise au service de la transaction immobilière.
Pour comparaison : un mètre-ruban génère 10 à 30 mm de marge d'erreur. Un Matterport Pro3 affiche ±20 mm et produit des plans schématiques inexploitables pour des devis artisans. Les chiffres que nous livrons ne sont pas des estimations. Chaque cote est une mesure laser. Un cuisiniste conçoit sur nos plans. Un carreleur calcule ses quantités. Un plombier trace son réseau. Les entreprises disposent d’une base fiable pour préparer leurs interventions.
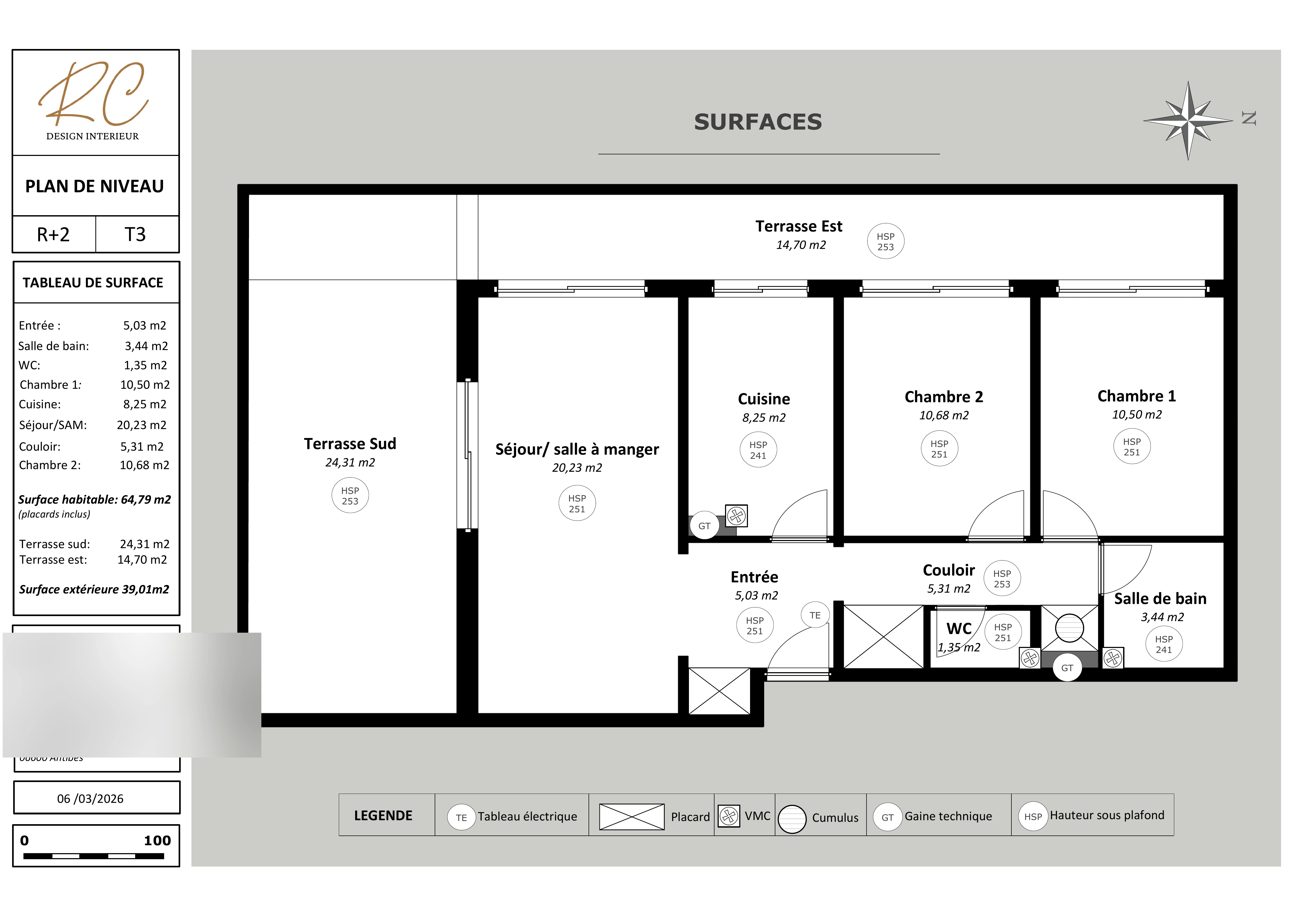
Plans 2D cotés de chaque niveau, cotes de chaque mur, surfaces réelles de chaque pièce, hauteurs sous plafond, position exacte des ouvertures et des réseaux visibles. Livrés en PDF pour le partage et en DWG/DXF pour les professionnels sous AutoCAD.
L'acquéreur envoie ces plans à plusieurs artisans. Chacun chiffre sur la même base — mêmes murs, mêmes surfaces, mêmes cotes. Les devis qui reviennent sont comparables. L'acquéreur additionne, construit son budget travaux, le présente à sa banque. Il ne fait plus d'estimations : il chiffre. C'est la différence entre un acquéreur qui hésite et un acquéreur qui signe — que ce soit pour un studio à Antibes ou une villa à Roquefort-les-Pins.
Sur la Côte d'Azur, où le mètre carré se négocie entre 5 000 et 12 000 euros, personne ne signe sans certitudes. Quand vous êtes l'agent qui remet un dossier avec des plans cotés au millimètre et la possibilité immédiate de faire chiffrer les travaux, vous n'êtes plus un intermédiaire. Vous êtes un accélérateur de décision. C'est un argument de mandat exclusif, un outil de conviction en rendez-vous vendeur — et un avantage concret que vos concurrents ne peuvent pas aligner, parce que personne d'autre ne propose ce service aux agences sur la Côte d'Azur.
En option, nous réalisons des projections 3D photoréalistes avec D5 Render. À partir du modèle exact du bien, nous montrons ce que l'appartement ou la villa pourrait devenir après rénovation : cuisine ouverte, salle de bain redessinée, redistribution complète des espaces. L'acquéreur ne doit plus imaginer — il voit. Le plan coté rassure sur les chiffres. La projection 3D fait percevoir le potentiel. Ensemble, ils transforment un bien à rénover — souvent perçu comme un risque — en un projet maîtrisé et désirable.
L'intervention dure une à deux heures selon la surface. Le scanner fonctionne sans préparation — meubles en place, bien occupé ou non. Nous nous coordonnons avec vous ou directement avec le vendeur. Le dossier complet est livré sous cinq à sept jours ouvrables. Les projections 3D suivent dans les deux semaines.
Tarif unitaire pour une intervention ponctuelle, formule dégressive pour les agences qui intègrent le service régulièrement. TVA non applicable, article 293 B du CGI. La rentabilité se mesure simplement : si le dossier raccourcit le délai de vente de deux mois, c'est une commission perçue deux mois plus tôt. Si le dossier permet à un acquéreur de se décider au lieu de disparaître, c'est une vente conclue au lieu d'une vente perdue.
Envoyez-nous l'adresse et la surface du bien. Nous vous revenons sous 24 à 48 heures avec une proposition adaptée à votre agence.
Intervention : Antibes, Cannes, Nice, Valbonne, Juan-les-Pins, Mougins, Grasse, Saint-Laurent-du-Var
Réponse : sous 24 à 48h — premier échange sans engagement
À la prise de mandat. Proposer un scan 3D au vendeur, c'est lui montrer que vous investissez dans la vente de son bien. C'est un argument concret face aux concurrents qui se contentent de photos et d'une estimation en ligne. Le vendeur comprend que son bien sera présenté avec des données vérifiées — et il signe le mandat exclusif.
Pendant la commercialisation. L'annonce mentionne "plans cotés au millimètre disponibles". Cette simple ligne filtre les acquéreurs. Ceux qui demandent les plans ont un projet concret. Ceux qui passent à l'étape suivante — demander des devis artisans — sont ceux qui vont signer. Moins de visites improductives, plus de contacts qualifiés.
Au moment de la négociation. Quand l'acquéreur dispose d'un budget travaux chiffré, la négociation porte sur des faits. Il ne demande plus 15 % de remise "parce qu'il y a des travaux". Il connaît le montant exact et ajuste son offre en conséquence. La transaction avance sur des bases rationnelles et le taux de transformation augmente.
Antibes, Cannes, Nice, Valbonne, Mougins, Grasse, Juan-les-Pins, Villeneuve-Loubet, Cagnes-sur-Mer, Saint-Laurent-du-Var, Biot, Vallauris et l'ensemble de l'arrière-pays. Notre expérience en conception d'intérieur et en rénovation intérieure et extérieure sur ces mêmes biens nous donne un avantage concret : nous savons exactement ce que les artisans attendent comme informations, parce que nous travaillons avec eux au quotidien.
Décrivez-nous le bien et vos objectifs. Nous revenons vers vous sous 24 à 48 heures avec une proposition adaptée à votre agence et votre volume.
UNE QUESTION ?
Cette FAQ rassemble les réponses aux questions les plus fréquentes des agents immobiliers sur notre service de numérisation 3D Leica BLK360 G2 appliqué à la transaction immobilière. Chaque dossier est conçu pour aider vos acquéreurs à disposer de données techniques utiles pour chiffrer leurs travaux et prendre leur décision d'achat. Sur la Côte d'Azur, où les biens à rénover représentent une part importante du marché, RC Design Intérieur met la précision du scanner laser au service de votre performance commerciale.
Le Leica BLK360 G2 offre une précision de l’ordre de ±4 mm à 10 mètres, avec un taux de capture pouvant atteindre 680 000 points par seconde. [web:68][web:81] C'est la même famille de technologies que celles utilisées par les géomètres-experts et les bureaux d'études pour la documentation architecturale. À titre de comparaison, une prise de cotes au mètre ruban génère facilement plusieurs millimètres de variation selon l’opérateur. Les plans issus du scan apportent une base de travail fiable aux artisans pour préparer leurs devis et leurs études, sous leur propre responsabilité.
L'intervention dure en général une à deux heures selon la surface du bien. Le scanner capture plusieurs centaines de milliers de points par seconde et réalise un scan complet de station en moins de 20 secondes. [web:81] Aucune préparation particulière n’est nécessaire : les meubles peuvent rester en place et le bien peut être occupé. Nous nous coordonnons directement avec le vendeur ou le gardien, afin de limiter la mobilisation de votre temps.
Le dossier comprend notamment : des plans 2D cotés de chaque niveau avec les dimensions principales, un tableau récapitulatif des surfaces pièce par pièce, des indications de hauteurs sous plafond et la position des ouvertures et réseaux visibles. Les formats livrés sont le PDF, pratique pour le partage avec vendeurs et acquéreurs, et des fichiers DWG/DXF adaptés aux professionnels utilisant des logiciels de type AutoCAD. [web:73][web:76]
Le dossier complet est généralement livré sous cinq à sept jours ouvrables après l'intervention. Les projections 3D photoréalistes D5 Render, lorsqu’elles sont demandées en complément, sont livrées dans un second temps, en moyenne dans les deux semaines. En cas de timing serré (signature, contre-visite), un traitement accéléré peut être étudié sur demande, en fonction du planning.
Le tarif dépend de la surface du bien, des livrables souhaités (plans seuls, projections 3D, etc.) et du volume de missions confiées dans l’année. Nous proposons des conditions préférentielles aux agences, que ce soit pour des interventions ponctuelles ou dans le cadre d’un usage récurrent. Pour la plupart des transactions, le coût du scan reste marginal par rapport à une commission d’agence classique, tout en renforçant la qualité du dossier présenté. Contactez Charlotte au 06 21 25 69 36 pour recevoir une proposition adaptée à votre agence. TVA non applicable, article 293 B du CGI.
Matterport est d’abord conçu pour les visites virtuelles immersives, avec une précision annoncée de l’ordre de ±20 mm à 10 mètres pour le modèle Pro3. [web:72][web:75] Le Leica BLK360 G2 est avant tout un scanner laser de mesure, dont la précision autour de ±4 mm à 10 m est particulièrement adaptée à la documentation architecturale et aux plans techniques. [web:67][web:71] Autre différence : de nombreuses offres Matterport reposent sur un abonnement cloud, alors que nos livrables (PDF, DWG) vous sont remis en formats ouverts que vous pouvez archiver et partager librement avec vos clients et partenaires.
Proposer un scan 3D au vendeur montre que vous investissez dans la mise en valeur de son bien : plans professionnels, surfaces vérifiées, vues 3D potentielles. C’est un argument concret pour vous différencier d’une agence qui se limiterait à quelques photos et à une estimation rapide. Le vendeur voit que son bien sera présenté avec un dossier structuré, ce qui rassure les acquéreurs et facilite les échanges avec leurs artisans et leurs banques. Ce niveau de préparation contribue à faire pencher la balance en faveur d’un mandat exclusif.
Les plans issus du scan fournissent des cotes détaillées et homogènes qui servent de base commune à l’ensemble des intervenants. Un cuisiniste, un carreleur ou un plombier peuvent ainsi préparer leurs estimations en s’appuyant sur les mêmes données, qu’ils complètent ensuite par leurs propres relevés et visites techniques. Le fait que plusieurs artisans travaillent à partir d’une même base de mesures rend les devis plus facilement comparables pour l’acquéreur, qui peut élaborer son budget travaux et le présenter à sa banque avec un dossier structuré.
Nous intervenons sur l'ensemble des Alpes-Maritimes : Antibes, Cannes, Nice, Valbonne, Mougins, Grasse, Juan-les-Pins, Villeneuve-Loubet, Cagnes-sur-Mer, Saint-Laurent-du-Var, Biot, Vallauris et l'arrière-pays. Notre expérience du bâti local — immeubles Belle Époque, copropriétés des années 1970, villas provençales, bastides — nous permet d’adapter notre méthode de relevé aux spécificités de chaque typologie de bien.
À partir du modèle 3D issu du scan, nous réalisons avec D5 Render des visuels photoréalistes illustrant ce que l'appartement ou la villa pourrait devenir après rénovation : cuisine ouverte, salle de bain redessinée, redistribution des espaces, nouvelles ambiances. L'acquéreur visualise le potentiel du bien plutôt que de devoir l’imaginer seul. Ces images complètent le dossier technique et facilitent les échanges lors des visites et contre-visites.
Oui. Nous proposons des conditions spécifiques aux agences qui souhaitent intégrer le scan 3D de manière régulière dans leur process de vente. Volume annuel, types de biens ciblés, éventuelle exclusivité sur un secteur : chaque partenariat est construit sur mesure en fonction de votre stratégie. Contactez-nous pour en discuter et recevoir une proposition adaptée à votre volume de mandats.
En pratique, le dossier technique peut vous aider à raccourcir certains délais de vente (acquéreurs rassurés plus tôt), à concrétiser des ventes qui auraient pu être abandonnées faute de visibilité sur le budget travaux, et à renforcer votre dossier de candidature pour des mandats exclusifs. Le coût d’un scan reste modeste au regard d’une commission d’agence : dès qu’il contribue à faciliter une transaction ou à sécuriser un mandat, l’investissement est largement justifié à l’échelle de l’année. Nous analysons ces enjeux avec vous lors du premier échange pour dimensionner l’offre au plus juste.
Particulier, professionnel ou propriétaire à distance - décrivez-nous votre bien et vos objectifs.
Grâce au relevé 3D Leica et à une méthode de conception rigoureuse, nous sécurisons vos choix et votre budget avant le lancement des travaux. De la conception à la réception du chantier, un accompagnement sur mesure.